1999-2022 © 中山市顺力机电设备有限公司(螺杆空压机华南地区总代理商) 版权所有www.alohabeachclub.cn 粤ICP备08103020号-3
现在社会人们对螺杆空压机的要求越来越高了其性能也随之,从部件到整机大家都想了解其用途及如何去保养,下面就介绍下关于螺杆空压机进气阀的一些基本常识:
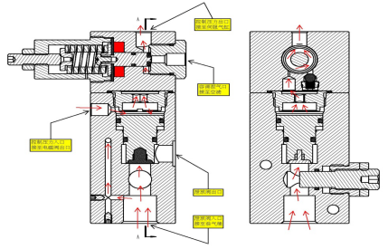
1、活塞式进气阀:利用空压机进气阀内活塞上下动作控制空压机空重车工作。
当空压机启动、停机和空载时,泄放电磁阀利用进气口向活塞供气,使活塞向上关闭;当空压机全负荷工作后,泄放电磁阀得电停止泄放,活塞室从排气口排出,进气阀活塞因进气压力差的关系下降,进气阀全开,空压机全负荷工作;当压力达到设定压力上限时,泄放电磁阀失电开始泄放,并将进气阀活塞推上,使进气阀处于关闭状态。此时空压机呈空载状态。
活塞式进气阀的结构有进气口、阀门上盖、活塞、底座、泄放电磁阀组成。
2、蝶式进气控制阀:螺杆式空压机启动时进气阀阀片处于关闭状态,确保不带负荷启动。当电动机重负荷运转时,三相电磁阀加电后被打开,由此过来的气体进气进气阀的伺服汽缸,推动伺服汽缸的阀杆,带动进气蝶阀,使之全开,开始重负荷运转。蝶式进气控制阀内部的单摆式止回阀自带配重和氟橡胶密封圈,开机时螺杆式空压机主机吸气,由于压差的原因,止回阀能及时迅速的紧密关闭,确保没有停机吐油的现象。

蝶阀的开启和关闭手控制气缸控制 ,根据接受压力信号配合反比例阀可控制气缸的活塞杆深处长短,蝶阀打开或者关闭,从而调节螺杆式空压机的进气量。蝶式进气控制阀的结构由阀体、单摆式止回阀、蝶形阀和伺服汽缸组成。
以上就是关于进气阀的一些基本常识与操作使用注意事项,柳州富达螺杆空压机原厂部件让空压机在使用中更加省心省力。